肥後橋渡辺ビル 地下1階

21.86万円(0.72万円/坪)

管理 / 共益費 117,656円

大阪府大阪市西区江戸堀1丁目6-10

地下鉄四つ橋線「肥後橋」駅徒歩2分

地下鉄御堂筋線「淀屋橋」駅徒歩9分

賃料 / 坪単価
21.86万円 / 0.72万円
敷金(保証金)
0万円(0万円)
所在地
大阪府大阪市西区江戸堀1丁目6-10
交通

地下鉄四つ橋線肥後橋」駅 徒歩2分

地下鉄御堂筋線淀屋橋」駅 徒歩9分

管理 / 共益費
117,656円
礼金
0万円
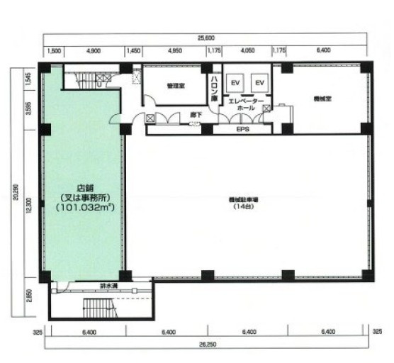
建物面積
30.56坪(101.02㎡)
築年月
1991年2月(築35年)

物件の特徴

  • エレベーター

セールスポイント

大阪メトロ四ツ橋線「肥後橋駅」徒歩2分!人気エリアの綺麗なオフィスビル地下1階店舗です!業種応相談☆(飲食および無人営業・24時間営業は不可)

ポイント

駐車5台以上 エレベーター 駅徒歩5分以内 エレベーター2基 専有面積30坪以上

基本情報

保証金
0万円
敷引 / 償却
0万円 / 0万円
権利金
0万円
建物面積
0坪(101.02㎡)
所在階 / 階建て
地下1階 / 9階建 地下1階
建物構造
鉄骨鉄筋コンクリート
築年月
1991年2月(築35年)
種別
店舗一部
契約期間
2年
保証会社 / 料金
- / -
駐車場 / 月額
空有(8台) / 38,500円 (税込) 都度空き確認必要
現況
空家
入居可能時期
相談
取引条件の
有効期限
2026年04月20日

設備条件

設備条件
  • エレベーター / 給湯室 / 男女トイレ別 / トイレ共同

その他

賃貸区分
一般
更新料
0万円
更新事務手数料
0万円
保険会社 / 料金
有  / -
取引態様
仲介
物件番号
103074352
情報更新日
2026年04月06日
次回更新予定日
2026年04月20日
取扱会社
  • 株式会社OfficeLink
  • 大阪府大阪市中央区南本町3丁目3-14 貴田ビル 8F
  • TEL:06-6226-7400
  • 大阪府知事 (4) 第54231号
    建設業許可(般-4)第159304号
  • 【 保証協会の名称及び所在地】
    社団法人 全国宅地建物取引業保証協会/東京都千代田区岩本町2-6-3
    【所属本部の名称及び所在地】
    社団法人 全国宅地建物取引業保証協会 大阪本部/大阪府大阪市中央区船越町2-2-1
    【弁済業務保証金の供託所及び所在地】
    東京法務局/東京都千代田区九段南1丁目1-15
備考
■駐車場有り:8台空き有り。※都度空き確認必要
賃料38,500円(税込)/台
敷金105,000円/台
■敷金相談
■現況:スケルトン。出入口は正面玄関のみです
※万一成約済み、条件変更の場合はご了承ください。

周辺施設

  • 大阪肥後橋郵便局の画像

    郵便局

    大阪肥後橋郵便局

    158m(2分)

  • ファミリーマート 京町堀店の画像

    コンビニエンスストア

    ファミリーマート 京町堀店

    190m(3分)

  • 大阪科学技術館の画像

    その他

    大阪科学技術館

    398m(5分)

近隣の物件

  1. アルカディーナ京町堀

    大阪市西区京町堀1丁目

    - (66.12㎡)

    50.6万円(2.53万円/坪)

  2. パシフィックマークス肥後橋

    大阪市西区江戸堀1丁目

    - (183.77㎡)

    要相談(要相談/坪)

よく見られている物件

  1. リンク西天満ビル(旧ビル名:伊藤ビル)

    大阪市北区西天満3丁目

    - (60.00㎡)

    13.75万円

  2. (仮称)堂島ビル

    大阪市北区堂島2丁目

    - (132.23㎡)

    55万円

  3. 中和南久宝寺ビル

    大阪市中央区南久宝寺町2丁目

    - (563.18㎡)

    66万円

  4. JRWD堂島タワー

    大阪市北区堂島2丁目

    - (58.47㎡)

    要相談

肥後橋渡辺ビル

肥後橋渡辺ビル

21.86万円

117,656円

30.56坪(101.02㎡)

お気軽にお問い合わせください

無料お問い合わせ

株式会社OfficeLink

06-6226-7400

9:00-18:00

(休:土日祝祭日)